Word je warm van ons verhaal? Laten we samen kennismaken!
Neem contact op- 92 m²
- 267 m²
- 3
- D
Omschrijving
Leuke tweekapper met prachtige tuin en enorm veel mogelijkheden!
In het gezellige Vlijmen staat deze ruime twee-onder-een-kapwoning met drie slaapkamers (en optie voor een vierde), een aangebouwde garage en een royale, zonnige tuin van maar liefst 15 bij 10 meter. De woning is goed onderhouden, maar biedt volop kansen om te moderniseren en volledig naar eigen smaak in te richten. Dankzij de rustige, kindvriendelijke ligging en de praktische indeling voelt dit huis direct als een fijne basis om verder op te bouwen.
INDELING
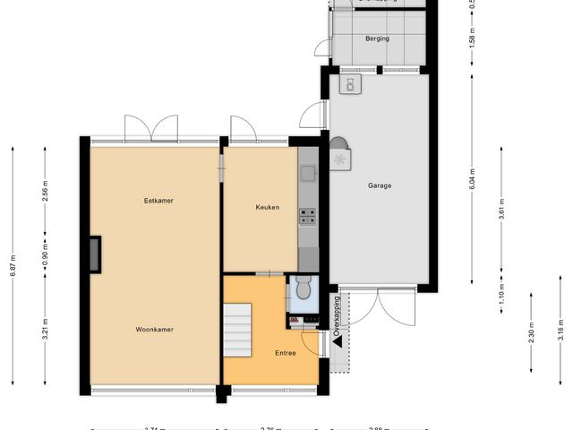
Begane grond
Via de oprit kom je binnen in de hal met toilet, meterkast en trapopgang. De keuken is functioneel ingericht en geeft toegang tot zowel de tuin als de lichte woonkamer met grote ramen en dubbele tuindeuren. De airconditioning zorgt voor extra comfort.
Eerste verdieping
Hier bevinden zich drie slaapkamers, een badkamer, een doorloopkamer welke ook geschikt is als inloopkast en een bergkast.
Tweede verdieping
Momenteel in gebruik als bergruimte, maar dankzij het dakkapel zeer geschikt om een extra slaapkamer of hobbyruimte te realiseren. Hier bevindt zich ook de cv-ketel.
GARAGE
De ruime, aangebouwde garage met elektra en aansluitingen voor wasmachine en droger biedt volop mogelijkheden, bijvoorbeeld als werkruimte of om (deels) bij de woning te betrekken.
TUIN
De zonnige, op het zuiden gelegen tuin is met veel zorg en liefde aangelegd en bijna 15 meter diep. Het groen is weelderig en perfect onderhouden, waardoor de tuin een rustgevende, natuurlijke sfeer uitstraalt. Dankzij de royale afmetingen is er volop ruimte voor meerdere zitplekken of een speelplek voor kinderen. De tuin biedt veel privacy en voelt als een verlengstuk van de woonkamer. Overal waar je kijkt, zie je groen, van bloeiende planten tot volgroeide struiken. Hier geniet je van ochtendzon tot avondlicht in een oase van rust. Een praktische berging zorgt voor extra gemak bij het opbergen van tuinspullen. Of je nu wilt loungen, tuinieren of buiten eten, deze tuin biedt alle mogelijkheden.
LOCATIE
Deze woning is ideaal gelegen, met alle voorzieningen binnen handbereik. Supermarkten en andere voorzieningen voor de dagelijkse boodschappen zijn binnen een minuut te bereiken. Ook de A59 is snel bereikbaar, en wil je de stad opzoeken? Binnen 15 minuten ben je in het centrum van Den Bosch. Voor de nodige ontspanning kun je heerlijk wandelen of fietsen in de Drunense Duinen, waar je kunt genieten van de natuur en rust. De perfecte locatie voor zowel gemak als ontspanning!
BIJZONDERHEDEN
- Ruime, lichte woonkamer;
- drie slaapkamers, mogelijkheden voor meer;
- Zonnige, goed onderhouden tuin op het zuiden;
- Aangebouwde garage;
- Eigen oprit;
- Alle voorzieningen in de buurt;
- Dichtbij oprit A59.
Toon meer
In het gezellige Vlijmen staat deze ruime twee-onder-een-kapwoning met drie slaapkamers (en optie voor een vierde), een aangebouwde garage en een royale, zonnige tuin van maar liefst 15 bij 10 meter. De woning is goed onderhouden, maar biedt volop kansen om te moderniseren en volledig naar eigen smaak in te richten. Dankzij de rustige, kindvriendelijke ligging en de praktische indeling voelt dit huis direct als een fijne basis om verder op te bouwen.
INDELING
Begane grond
Via de oprit kom je binnen in de hal met toilet, meterkast en trapopgang. De keuken is functioneel ingericht en geeft toegang tot zowel de tuin als de lichte woonkamer met grote ramen en dubbele tuindeuren. De airconditioning zorgt voor extra comfort.
Eerste verdieping
Hier bevinden zich drie slaapkamers, een badkamer, een doorloopkamer welke ook geschikt is als inloopkast en een bergkast.
Tweede verdieping
Momenteel in gebruik als bergruimte, maar dankzij het dakkapel zeer geschikt om een extra slaapkamer of hobbyruimte te realiseren. Hier bevindt zich ook de cv-ketel.
GARAGE
De ruime, aangebouwde garage met elektra en aansluitingen voor wasmachine en droger biedt volop mogelijkheden, bijvoorbeeld als werkruimte of om (deels) bij de woning te betrekken.
TUIN
De zonnige, op het zuiden gelegen tuin is met veel zorg en liefde aangelegd en bijna 15 meter diep. Het groen is weelderig en perfect onderhouden, waardoor de tuin een rustgevende, natuurlijke sfeer uitstraalt. Dankzij de royale afmetingen is er volop ruimte voor meerdere zitplekken of een speelplek voor kinderen. De tuin biedt veel privacy en voelt als een verlengstuk van de woonkamer. Overal waar je kijkt, zie je groen, van bloeiende planten tot volgroeide struiken. Hier geniet je van ochtendzon tot avondlicht in een oase van rust. Een praktische berging zorgt voor extra gemak bij het opbergen van tuinspullen. Of je nu wilt loungen, tuinieren of buiten eten, deze tuin biedt alle mogelijkheden.
LOCATIE
Deze woning is ideaal gelegen, met alle voorzieningen binnen handbereik. Supermarkten en andere voorzieningen voor de dagelijkse boodschappen zijn binnen een minuut te bereiken. Ook de A59 is snel bereikbaar, en wil je de stad opzoeken? Binnen 15 minuten ben je in het centrum van Den Bosch. Voor de nodige ontspanning kun je heerlijk wandelen of fietsen in de Drunense Duinen, waar je kunt genieten van de natuur en rust. De perfecte locatie voor zowel gemak als ontspanning!
BIJZONDERHEDEN
- Ruime, lichte woonkamer;
- drie slaapkamers, mogelijkheden voor meer;
- Zonnige, goed onderhouden tuin op het zuiden;
- Aangebouwde garage;
- Eigen oprit;
- Alle voorzieningen in de buurt;
- Dichtbij oprit A59.
Kenmerken
Overdracht
- Vraagprijs
- € 449.000 k.k.
- Vraagprijs per m²
- € 4.880
- Aangeboden sinds
- 26 november 2025
- Status
- Verkocht onder voorbehoud
- Aanvaarding
- In overleg
Bouw
- Soort woning
- Woonhuis
- Bouwjaar
- 1969
- Soort dak
- Zadeldak
Oppervlakten en inhoud
- Oppervlakte wonen
- 92 m²
- Oppervlakte overige inpandige ruimte
- 33 m²
- Oppervlakte gebouwgebonden buitenruimte
- 3 m²
- Perceel
- 267 m²
- Inhoud
- 445 m³
Indeling
- Aantal kamers
- 5
- Aantal slaapkamers
- 3
- Aantal badkamers
- 1
- Badkamervoorzieningen
- Toilet, douche en wastafel
- Aantal woonlagen
- 3
- Voorzieningen
- Tv-kabel, airconditioning en natuurlijke ventilatie
Energie
- Energielabel
- D
- Isolatie
- Muurisolatie en hr glas
- Verwarming
- Cv-ketel
- Warm water
- Elektrische boiler eigendom
- Cv-ketel
- 2004
Buitenruimte
- Ligging
- Aan rustige weg, in woonwijk en in bosrijke omgeving
- Tuin
- Achtertuin en voortuin
- Achtertuin
- 155 m² gelegen op het zuiden
Bergruimte
- Schuur/berging
- Aangebouwd hout
Garage
- Soort garage
- Aangebouwd steen
- Capaciteit
- 1
- Voorzieningen
- Verwarming, elektra en water